ساماندهی سایت مرودشت

ساماندهی سایت مرودشت

  • دسته بندی: طراحی
  • مقیاس: خرد
  • وضعیت: در دست طراحی
  • تاریخ: دهه 1400
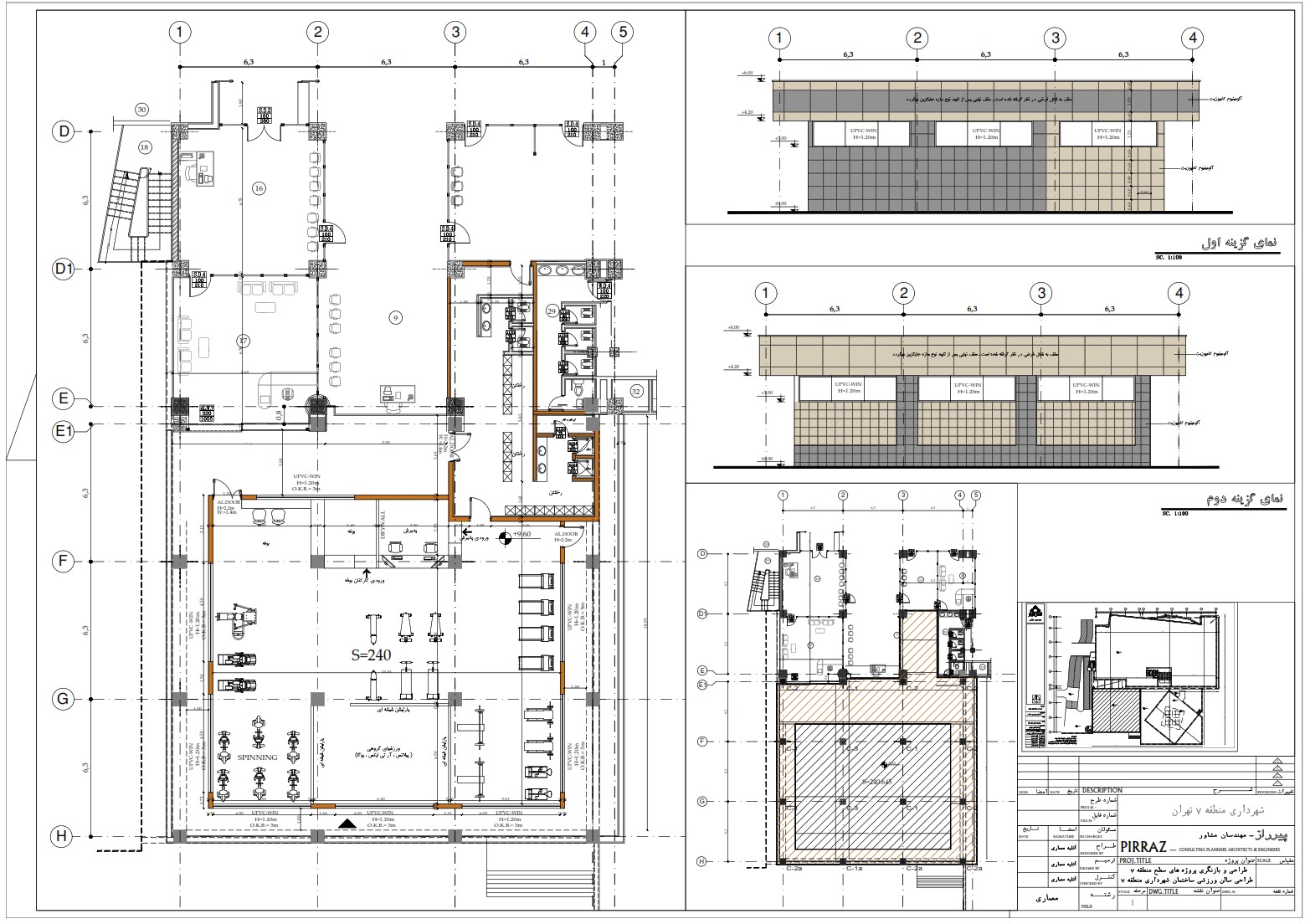
  • کارفرما: شهرداری منطقه 7 تهران
  • مساحت: 2645 متر مربع
  • شهر: تهران
  • موقعیت: منطقه 7 تهران

پروژه ساماندهی سایت مرو دشت، ذیل طراحی و بازنگری پروژه های عمرانی شهرداری منطقه 7 شهر تهران در زمینی به مساحت 2645 و اعیانی 3254 انجام شده است. 

ساماندهی سایت مرودشت
ساماندهی سایت مرودشت
ساماندهی سایت مرودشت
105
|

دیگر پروژه ها